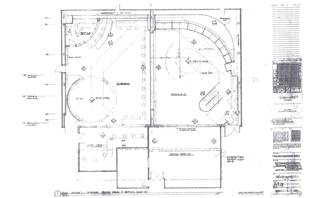
STUDIO B SETTING PLAN
PRIMETIME STUDIO PLAN
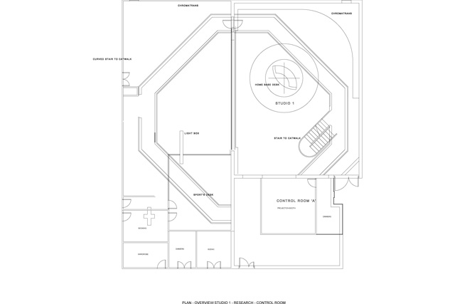
PROJECTION PLAN
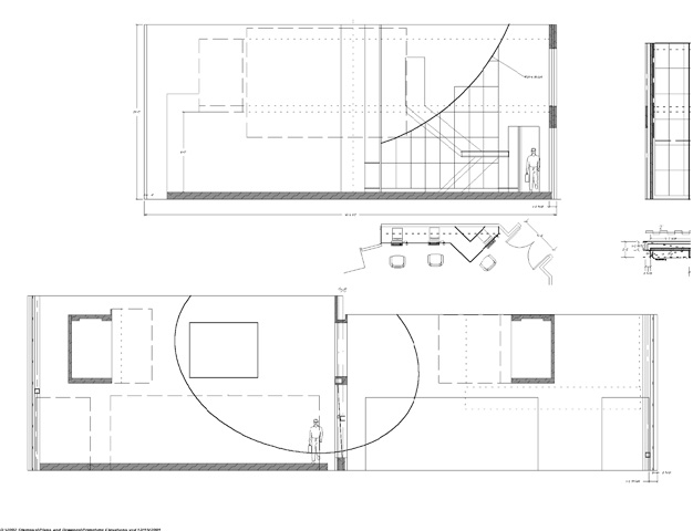
PRIMETIME LONG. SECTION
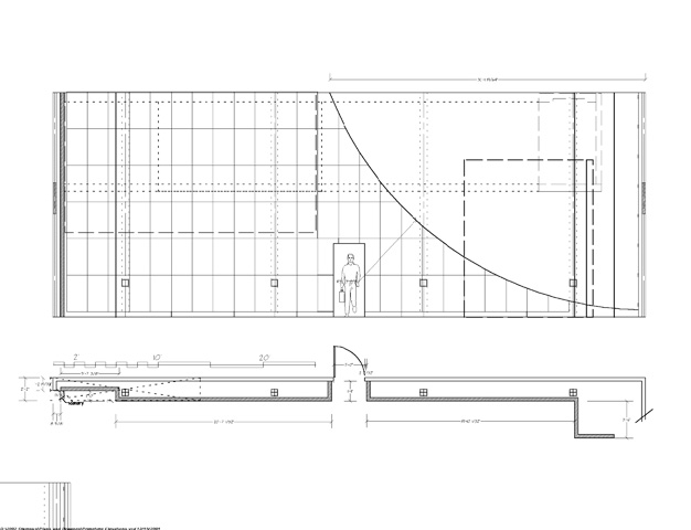
RESEARCH WALL ELEVATION
CONTROL WALLS ELEVATION
PRIMETIME PLAN
SCALE STUDY MODEL
SCALE STUDY MODEL
SCALE STUDY MODEL
SCALE STUDY MODEL
1 - 11
<
>
PHOTOS
BACK
DRAWINGS
GRAPHICS
Jeremy Conway Design
Projects