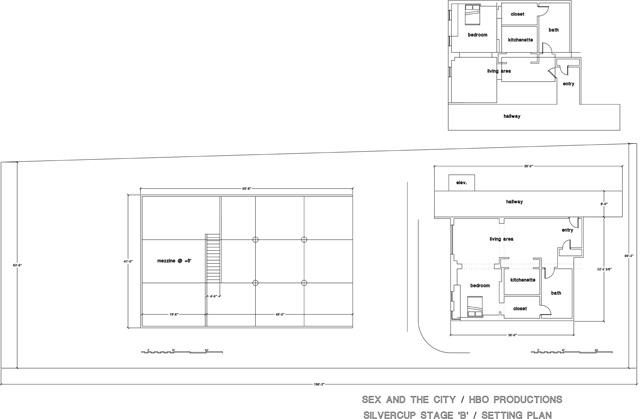
PRELIM CARRIE'S PLAN
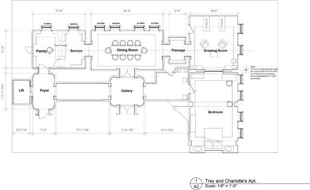
TREY AND CHARLOTTE'S
UTILITY RESTAURANT / CAFE
MODIFIED COFFEE SHOP
PUBLISHER'S OFFICE
PUBLISHER'S OFFICE
PUBLISHER'S OFFICE
4 - 7
<
>
PHOTOS
BACK
DRAWINGS
GRAPHICS
Jeremy Conway Design
Projects